Продается 2-х комн. квартира, 70 кв.м., 11/14 эт
Обзор№ - 184
| Стоимость | 32 500 000 |
|---|---|
| Доля в квартире | Нет |
| Комнат в квартире | 2 |
| Площадь, кв.м. | 70 |
| Жилая площадь | 40 |
| Площадь кухни, кв.м. | 15 |
| Этаж | 11 |
| Этажность | 14 |
| Материал стен | другой |
Адрес
| Населенный пункт | Москва |
|---|---|
| Улица | проспект Ленинградский |
| Номер дома | 29к3 |
В избранное 2-к. апартаменты, 70 м², 11/14 эт.
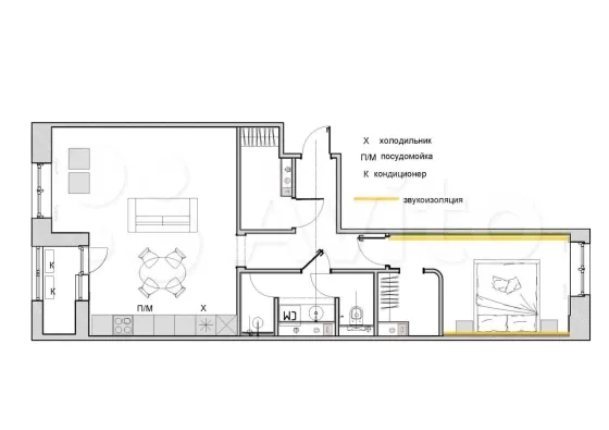
Продаю апартаменты в ЖК "Царская Площадь" Площадь гостиной 30 кв.м. Площадь спальни 12,5 м.кв. Ремонт закончен, осталось установить столешницу на кухню. Планируем на 15 апреля. Уже установлены: встроенный свет, люстры, итальянская кухня с техникой, сантехника, кондиционеры. Бытовая техника премиального бренда NEFF, холодильник Liebherr, кондиционеры Funai. В квартире очень тихо, одиннадцатый этаж и окна выходят во двор. Сделана шумоизоляция спальни. Проложены провода для акустики. Стену в гостиной украшает винтажное мозаичное панно советского периода.

















